【室內設計推薦】當夜晚降臨,家開始真正放鬆的模樣

【設計規格】
作品名: 夜魅【Night Enchant】
屋況: 新成屋
設計風格: 現代輕奢風
空間坪數: 60坪
空間格局: 3樓透天
【裝潢全紀錄】
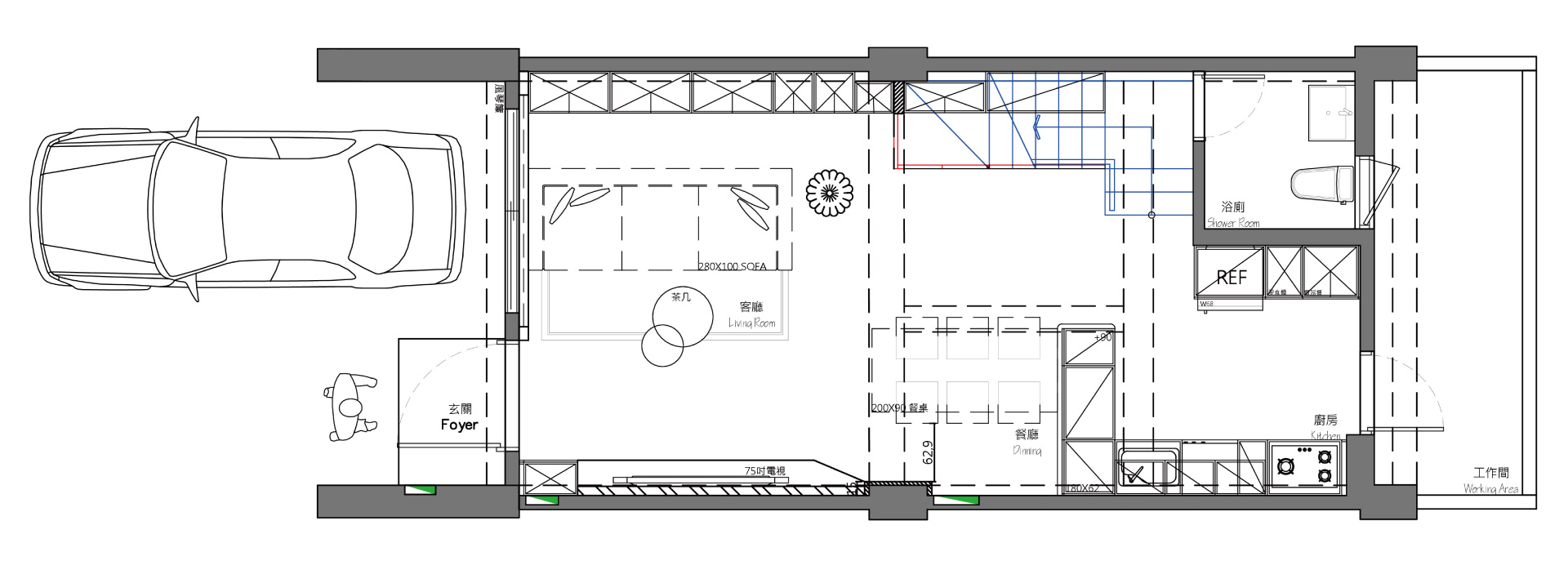
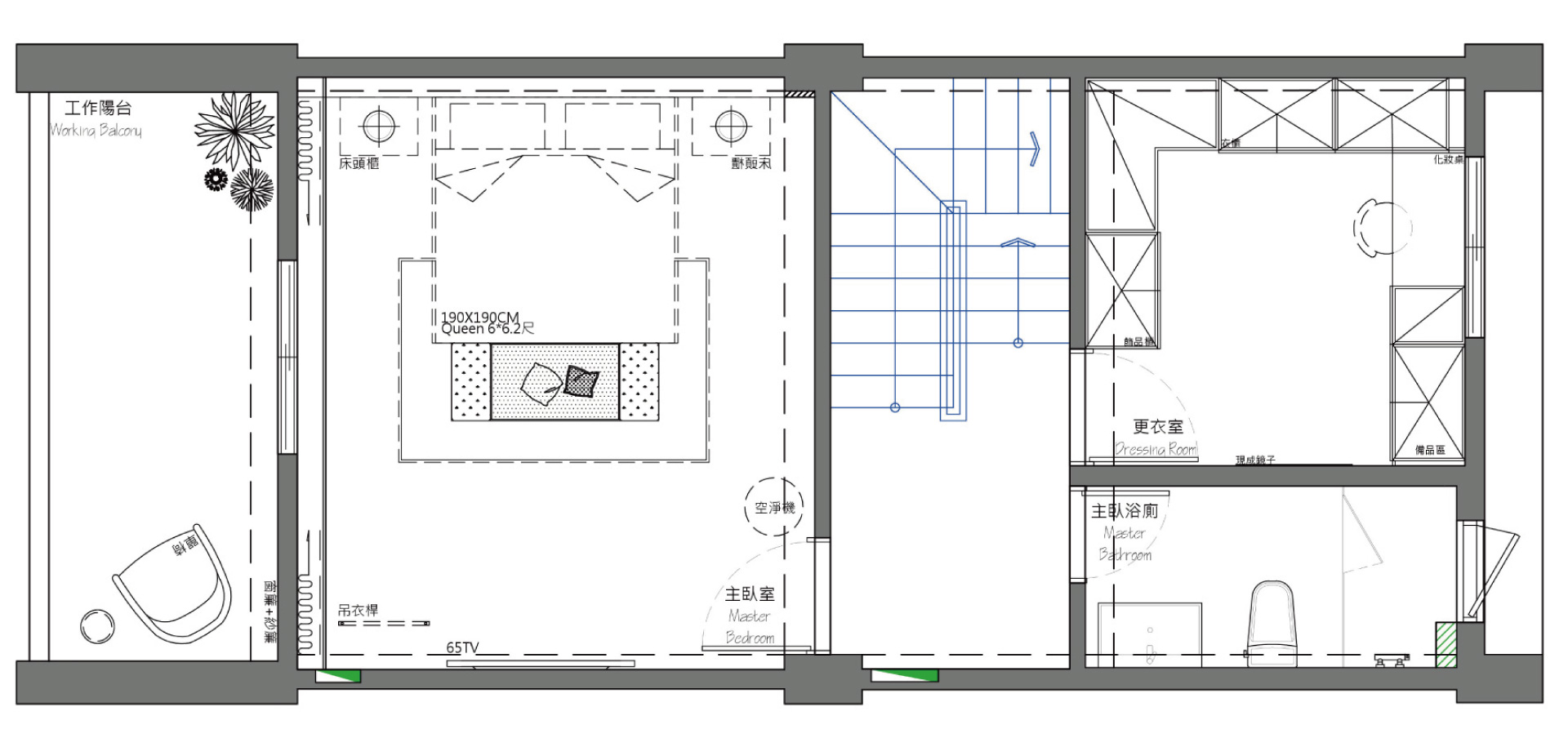
【平面配置圖】
1-2樓平面配置圖

【設計方案】
屋主訴求
✔ 偏好現代風格的整體調性,希望以深色系為主軸,營造沉穩且具質感的居家氛圍
✔ 女屋主期盼擁有專屬的更衣空間,兼具收納與展示功能,展現生活品味
✔ 希望充分運用一樓梯下空間,增加整體收納容量,讓動線更俐落、機能更完善
設計思路
✔ 空間以簡約線條與自然材質為基底,結合霧面金屬、木紋與石材,展現出內斂奢華的格調
✔ 本案以「夜色中的光影魅力」為靈感主軸,瀚寶設計團隊運用深色調與柔光層次,打造出沉靜而高質感的現代居家氛圍
✔ 從客廳到主臥的光線延續,使整體空間在日夜之間展現不同的情緒表現,讓居住者於家中體驗到如同飯店般的安定與優雅
【設計亮點】
1.客廳設計|黑韻映光的現代生活感
▼深色基調,營造沉穩包覆感
整體客廳以深灰、深木色為主軸,牆面與櫃體大面積使用低彩度材質,讓空間呈現內斂、安定的視覺氛圍,同時強化居家的放鬆感受
▼材質對比,提升空間細節質感
霧面木質櫃面、細緻織品沙發與金屬、玻璃展示櫃相互搭配,透過不同材質的觸感與反射,讓深色空間不顯單調,反而更顯層次與精緻度

▼大面電視牆,成為空間視覺核心
電視牆以大尺度石紋材質鋪陳,自然紋理在低彩度灰階中展現細膩層次,使客廳主牆既有份量感,又不顯厚重,成為整體空間的視覺焦點
▼懸浮櫃體與間接照明
電視下方採用懸浮式收納櫃設計,搭配底部間接燈光,減輕立面量體感,夜晚時形成柔和光帶,讓空間多了一份安定且高級的氛圍
2. 餐廳設計|以光為界,凝聚家的溫度

▼中島結合餐桌,放大生活互動場景
以中島延伸餐桌的配置,模糊料理、用餐與交流的界線,讓餐廳不只是吃飯的地方,而是日常聊天、小酌、閱讀都能自然發生的生活核心
▼深色檯面,形塑沉穩質感主軸
中島與餐桌選用深色石紋檯面,紋理低調卻富有層次,與整體空間的深色基調相呼應,讓餐廳在視覺上顯得內斂、有重量感
▼開放動線,讓空間自然呼吸
餐廳、中島與客廳維持開放式布局,動線順暢不擁擠,視線可一路延伸至電視牆,讓整個公共空間顯得寬敞、沉穩且富有生活節奏
3.樓梯間設計|開放式中島,烹調家的儀式感 

▼樓梯下空間再定義,轉化為展示與收納亮點
善用樓梯下方原本容易被忽略的畸零空間,規劃為展示櫃與收納層板,讓結構限制轉化為空間特色,提升整體使用效率與設計完整度
▼結構包覆設計,讓量體更俐落
透過完整包覆樓梯結構與線條整理,使斜面與階梯轉折顯得乾淨俐落,減少視覺雜亂感,讓空間更顯沉穩有序
4.廚房設計|開放式中島,烹調家的儀式感

▼開放式廚房,讓料理成為生活的一部分
廚房採開放式規劃,視線與中島、餐廳自然連結,使料理過程不被隔離,讓下廚也能參與家人互動,形塑溫度感十足的生活場景
▼深色櫃體與石紋檯面,延續沉穩主調
下櫃以深色霧面櫃體搭配石紋檯面,上櫃選用低彩度木紋,透過材質層次堆疊,讓廚房在機能性之餘仍保有整體空間的一致美感
5.主臥設計|寧靜內斂風格

▼公領域語彙延伸,讓主臥成為風格的延續
主臥延續一樓公領域的深色調與材質層次,將熟悉的光影與比例帶入睡眠空間,使私領域同樣保有整體風格的安定與連續性
▼床頭主牆,柔化空間層次
床頭牆面以帶有肌理感的灰階塗料呈現,自然紋理在光影下產生細微變化,讓空間不顯單調,同時保有安定與深度
▼ 生活留白,讓臥室回歸本質
主臥保留適當留白,避免過多裝飾與櫃體量體,使空間回歸「休息」本質,讓居住者在一天結束後真正沉澱下來
6.更衣間設計|收納&展示兼具

▼玻璃櫃體 × 間接照明,形塑精品般收納體驗
採用深色玻璃門片搭配內嵌燈光,讓衣物在柔和光源中被細緻呈現,不僅提升日常收納便利性,也讓更衣間成為兼具展示與實用的私領域場景
▼梳妝與更衣機能整合
採用深黑玻璃門片搭配內嵌燈光,讓衣物在柔和光源中被細緻呈現,不僅提升日常收納便利性,也讓更衣間成為兼具展示與實用的私領域場景
▼私領域的安定節奏
延續瀚寶風「七分色彩、三分留白、十分滿藝」的設計思維,更衣間不追求過度裝飾,而是讓材質、比例與光線自然說話,成為主臥中最安靜、卻最細膩的一段空間
【屋主真心話】
👔男屋主
「對我來說,瀚寶不太像設計師,他比較像是一位廚師,可以把各式各樣的食材,煮出你超乎想像的菜。等完工交屋後,我是完全沒想像到這麼美,很驚喜感動,因為這是我的第一個家。我覺得好的設計師,打電話基本上都會接,要找他都能找到,我覺得這對我來說很重要。」
👗女屋主
「我最喜歡的是2樓更衣室,我覺得很驚豔,每次來只開氛圍燈時,都感覺來到百貨精品櫃間。我們其實比較過滿多家設計公司的,大部分店家都很商業化,第一次見面就想拿合約給我們簽,但與瀚寶你們第一次會面,就能把要討論的資料準備完整,面談後就有很放心的感覺,會讓我們有信心的簽約。」
【瀚寶總監|設計理念】
我們相信,真正好的設計
不是炫技,而是能陪你長久生活
瀚寶以七分色彩|三分留白|十分滿藝
將國際設計標準,落實在每個家🏆
【延伸閱讀】
1.【室內設計推薦】讓生活慢下來的現代義式溫暖宅


