【室內設計推薦】30坪北歐風樓中樓設計案例|在光影與層次之間,展開日常生活

【設計規格】
作品名:階序映境【SequencedLoft】
屋況: 老屋
設計風格: 現代北歐風
空間坪數: 30坪
空間格局: 4房2廳2衛
【裝潢全紀錄】
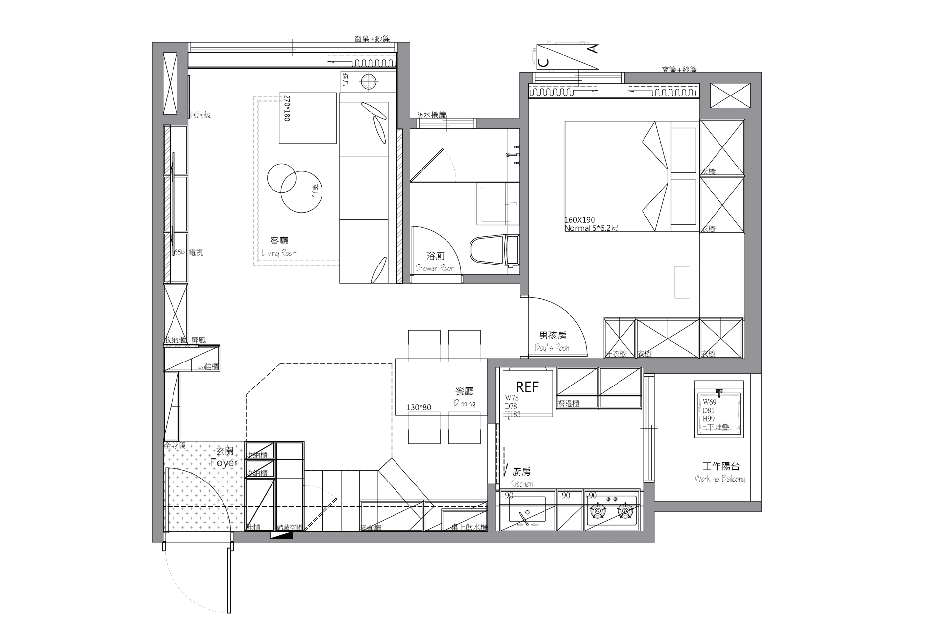
【平面配置圖】1樓

【設計方案】
屋主訴求
✔ 屋主希望新家 動線順暢、空間明亮、機能完整
✔ 整體視覺氛圍需呈現 舒適、耐看、活潑卻具質感
✔ 特別重視梯間與公共空間的銜接,希望用設計讓各場域視覺串起
設計思路
瀚寶團隊以「弧形×層次×柔霧色調」為核心概念
✔ 透過弧形線條柔化空間稜角,引導視覺自然流動
✔ 採用低彩灰白色系、藝術塗料與木質元素 形成柔和層次
✔ 運用光源與材質溫度差異,打造純淨而舒適的 Loft 式空間感
整體視覺從玄關到私領域,以階序方式遞進,強化空間節奏感
【設計亮點】
1.客廳設計|以光影與比例,打造耐看的北歐風客廳空間


1️⃣電視牆以大面低彩度塗料灰底牆面作為主視覺,讓空間顯得明亮開闊,也能讓家具、陳列物更加突出
2️⃣下方規劃懸浮式電視櫃,在視覺上減輕量體重量,同時提供影音設備收納,使電視牆保持俐落整潔
3️⃣旁側整合玻璃展示櫃,以透明與半透視的形式讓收藏品、飾品、器皿能自然融入空間,形成柔和且富變化的層次語彙
2. 玄關設計|從進門開始,收納與動線就已被精準安排
1️⃣玄關設計洞洞板,能依需求彈性搭配掛鉤與層板,滿足生活小物的日常吊掛,讓入口整潔有序
2️⃣底部將收納櫃結合穿鞋椅設計,方便穿脫鞋並保留充足置物空間,使玄關的使用體驗更舒適、實用
3️⃣一旁設置立式收納櫃,作為玄關落塵區的主要收納量體,並以玻璃屏風作為場域劃分,既保留光線穿透,又能適度遮擋視線,提升空間層次與隱私性
3.樓梯間設計|串聯上下空間,讓樓梯成為家的視覺主角

1️⃣梯間以黑鐵扶手引導視線,俐落線條讓垂直動線成為室內的視覺焦點之一
2️⃣木質踏階緩和鐵件的冷感,結合樓梯轉折讓上下樓過程更具溫度與安全感
3️⃣樓梯下方區域充分利用為收納與展示工作檯面,使空間不浪費且具實用機能
【屋主真心話】
【瀚寶總監|設計理念】
我們相信,真正好的設計
不是炫技,而是能陪你長久生活
瀚寶以七分色彩|三分留白|十分滿藝
將國際設計標準,落實在每個家🏆
【延伸閱讀】
1.【室內設計推薦】讓生活慢下來的現代義式溫暖宅