依據歐盟施行的個人資料保護法,我們致力於保護您的個人資料並提供您對個人資料的掌握。
按一下「全部接受」,代表您允許我們置放 Cookie 來提升您在本網站上的使用體驗、協助我們分析網站效能和使用狀況,以及讓我們投放相關聯的行銷內容。您可以在下方管理 Cookie 設定。 按一下「確認」即代表您同意採用目前的設定。
室內設計推薦
2026-02-23
【室內設計推薦】現代美式風室內設計|20坪新成屋2房2廳1衛,小宅也能住出豪宅感

【設計規格】
-
作品名稱|拾夢【Dream Gathering】
-
設計風格|現代美式風
-
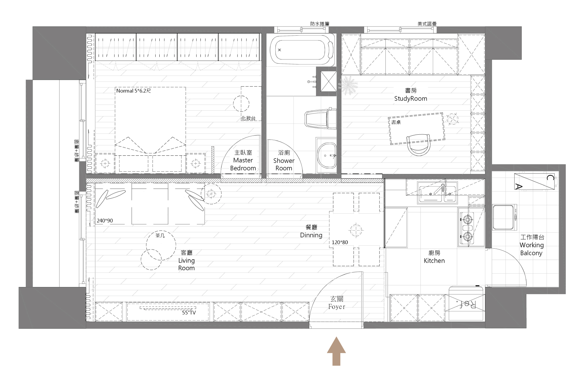
空間坪數|約20坪
-
格局配置|2房2廳2衛
【平面配置圖】

【設計方案】
屋主訴求
- 20坪新成屋也要住得像大宅:公共區域要放大、明亮,動線要順,回家就能真正放鬆
- 收納要夠、但畫面要乾淨:希望東西「收得起來」,視覺也「不被櫃體淹沒」
- 現代美式風要溫柔有細節:不厚重、不浮誇,但要一眼看得出比例、線條與品味
- 需要一間可彈性使用的書房:工作、閱讀、臥榻休息都要兼顧美感,並與整體風格一致
設計思路
- 以「把生活收好,把質感留在眼前」為核心:用現代美式常見的比例建立空間骨架,透過線條、框景、五金細節把質感做出來,再以淺色調+留白拉出 20 坪應有的通透感
- 機能面:收納不集中堆一面牆,而是分散在各區「該出現的位置」,讓使用順手、視覺清爽
- 氛圍面:以溫潤材質與光影層次,讓白天更明亮、夜晚更有溫度,住久也不容易膩
設計亮點-實際設計案例詳解
1.客廳設計|留白放大尺度,現代美式的「比例感」決定高級度

-
視覺放大關鍵:以淺色調與留白做底,讓採光自然延伸,20坪客廳看起來更寬、更乾淨
-
框景與線條語彙:用線條、框景建立客廳主視覺的秩序感,不靠堆料,也能有現代美式風的俐落細節
- 收納藏在生活路徑上:把客廳收納配置在「你會順手使用」的位置,減少桌面雜物,讓客廳長期維持像完工照一樣的清爽
2. 餐廳設計|好用的餐廳,靠的是動線與機能整合

- 餐廳動線先行:以「走動不打架」為原則,串接客廳與餐廳,讓用餐、備餐、收納都順手,公共區自然更放大
- 現代美式的細節感:在餐廳用線條比例與五金細節做質感收尾,呈現不厚重但很有品味的美式氛圍

- 收得乾淨才叫耐看:以「收納夠但不淹沒」為原則,讓餐桌與餐邊畫面乾淨,視覺更像質感宅而不是收納宅
3. 主臥設計|把安定感做好,臥室就會越住越喜歡

- 不浮誇的溫柔質感:延續整體淺色調與留白節奏,主臥以更柔和、耐看的層次,打造放鬆、安定的睡眠氛圍

- 收納不求多,求順:依生活習慣配置主臥收納,讓衣物、備品各就各位,維持「看起來乾淨」的高級感
- 光影決定飯店感:透過溫潤材質與光影層次,讓主臥白天明亮、夜晚更有溫度,越住越耐看
【瀚寶總監|設計理念】
我們相信,真正好的設計
不是炫技,而是能陪你長久生活
瀚寶以七分色彩|三分留白|十分滿藝
將國際設計標準,落實在每個家🏆
【延伸閱讀】
1.【室內設計推薦】讓生活慢下來的現代義式溫暖宅
其他相關訊息
2026-03-02
【室內設計推薦】58坪北歐風純淨宅,在木質與光影間,編織家的溫度
2026-02-10
【室內設計推薦】22坪日式中古風小宅|多色磁磚吧檯×開放式客餐廳動線
2026-02-04